广告

可选:点击以支持我们的网站

免费文章
Technical discuss

在示波器上看波形时,用外触发和自触发来看有何区别?

  • btt
  • [btt]
  • Topic Author
  • New Member
  • New Member
More
25 Oct 2020 12:50 #130 by btt
New Topic
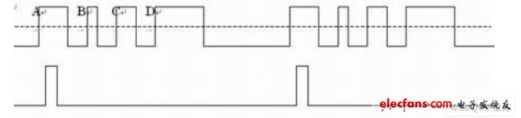
示波器的通常触发是边沿触发,其触发条件有 2 个,触发电平和触发边沿;即:信号的 上升沿(或者下降沿)达到某一特定电平(触发电平)时,示波器触发。 示波器只有在信 号自触发有问题的时候才会使用外触发,没有哪一个更好的问题。而这种问题通常可能是, 信号比较复杂, 有很多满足触发条件的点,无法每次在同一位置触发,从而得到稳定的显 示。这时需要使用外触发。举例如下:

  

  观测上面的信号,由于 ABCD 各点都会触发,示波器显示波形将不能稳定。这时可以使用 下面的信号作为触发信号,示波器将得到能够全部周期的显示。

Please Log in or Create an account to join the conversation.

¥697.01
No vote
Add to cart

Whatsapp

QR code whatsapp Michael Liang en

Login

¥34.85
No vote
Add to cart